Plans are coming into clearer focus for how a popular 1960s intown mall plans to adapt and capitalize on its new Atlanta Beltline proximity like numerous trailside properties before it.
Site plans and visuals recently filed with the City of Atlanta Office of Zoning and Development show in detail how the third location of celebrated restaurant Lewis Barbecue will transform the backside of Ansley Mall and face the Beltline’s Northeast Trail, alongside ancillary retail spaces and a new pedestrian bridge.
Following a ribbon-cutting this week, all Northeast Trail segments are now finished between southern Buckhead and Monroe Drive, opening easier, off-street access to the Ansley Mall area for a multitude of neighborhoods in both directions.
Ansley Mall renovation plans compiled by Terminus Design Group architects are scheduled to come before NPU-F next week and the city’s Zoning Review Board on Dec. 5.
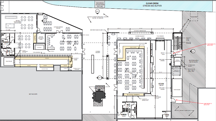
According to a Special Use Permit application, the smokehouse will stand two stories adjacent to other retail spaces. All the Beltline-facing spaces will total 11,000 square feet, according to retail leasing agents Bridger Properties.
Full scope of renovation plans for the backside of Ansley Mall, as served by the pedestrian bridge installed in 2023. Terminus Design Group
For Lewis Barbecue, the Ansley Mall outpost will mark the concept’s third location, following others in Charleston and Greenville. Some 3,000 weekly patrons are expected, with a substantial portion of them arriving from the Beltline. Another 100 to 150 vehicles per day are expected at the mall, per the SUP application.
We’ve asked reps with Ansley Mall owner and landlord Selig Enterprises for an update on when the restaurant, other retail spaces, and the pedestrian bridge might open. [UPDATE: 3:29 p.m., Nov. 15: Selig officials say no definitive timeline for the first-to-market barbecue concept's opening and other openings has been set. They also specify that early details in this story pulled from the SUP application regarding a laundromat and bar's closing weren't entirely accurate.]
Selig, which has owned the 16-acre mall property for a half-century, completed the 105-foot pedestrian bridge project a year ago. It's meant to serve as a welcome mat for Beltline patrons—and an easier connection to the Beltline for residents in nearby neighborhoods such as Piedmont Heights.
Officials have said the bridge project doesn’t impact surrounding nature, which includes wooded areas and a small waterway called Clear Creek. It remains fenced-off and closed to the public for now.
Ansley Mall’s tenants today include The Cook’s Warehouse, Ansley Wine Merchants, Phidippides, Brooklyn Bagel, and Intaglia Home Collection, among others.
Selig bought Ansley Mall in 1972 and still considers it a jewel-box asset in a 4-million-square-foot portfolio of retail properties across the Southeast. In Atlanta, those include adaptive-reuse district The Works in Underwood Hills, The Shops of Buckhead, Brookwood Place, Peachtree Plaza, and Buckhead Square I and II, among other holdings.
The repositioning of eastside properties to better interface with Beltline trails has been a trend for years.
Notable early adopters included the Ladybird Grove & Mess Hall space and Murder Kroger (RIP), where a connecting trail and jovial mural were installed in 2014 to help siphon customers from the Beltline.
A more recent example is the Midtown Promenade redo near Piedmont Park, where the back alley was converted into a more welcoming plaza entrance with new shops and eats, including an Athlete’s Foot flagship. The Painted Park concept in Inman Park—now open—is another case of backdoors becoming Beltline welcoming mats.
Head up to the gallery for more context and a closer look at planned changes behind Ansley Mall.
...
Follow us on social media:
Twitter / Facebook/and now: Instagram
• Come along for a photo tour of Atlanta BeltLine's new stretch (Urbanize Atlanta)



